Spațiu comercial de Închiriere o incapere, SCCJ246766FLO Chirie in Floresti

Floresti, FLORESTI
3000 EURO
Imi acord consimtamantul cu privire la prelucrarea datelor colectate prin acest formular, conform politicii de protectie a datelor personale care este detaliata AICI.
Spațiu comercial de Închiriere o incapere, SCCJ246766FLO-1
  • IDSCCJ246766FLO
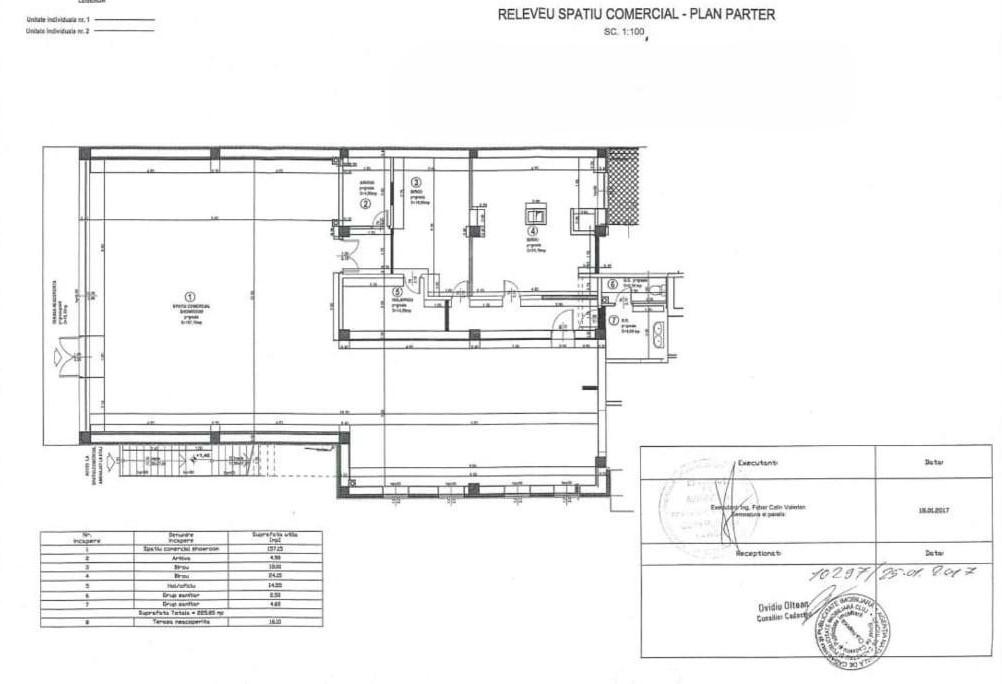
  • Suprafață utilă225 mp
  • Camere 1
  • Bai1

Descriere

Cea mai bună ofertă la cel mai bun preț! EDIL Florești vă propune spre închiriere un spațiu comercial deosebit, situat în Florești, vad excelent chiar la drumul european E60, în imediata apropiere de VIVO și reprezentanța BMW. Spațiul dispune de o suprafață utilă de 225 mp, este amplasat la parter și beneficiază de o vitrină generoasă la stradă, cu un front de 10 metri, oferind vizibilitate maximă.Construcția este realizată din cărămidă, cu fundație din beton, acoperiș din tablă și izolație exterioară, având o înălțime interioară de 2,7 m. Interiorul se află într-o stare bună și dispune de grup sanitar, posibilitate de compartimentare, precum și de facilități moderne: centrală proprie pentru încălzire, sistem de aer condiționat, apă, gaz, curent (inclusiv trifazic) și canalizare.Spațiul oferă toate dotările necesare pentru un business de succes: acces auto, sistem de alarmă, număr generos de locuri de parcare, autorizație ISU, precum și posibilitatea montării unui totem publicitar pentru vizibilitate sporită.Datorită amplasamentului strategic și caracteristicilor sale, spațiul este ideal pentru showroom, magazin, birouri sau alte activități comerciale.Pentru mai multe detalii sau pentru programarea unei vizionări, vă așteptăm la sediul nostru EDIL Florești, Str. Eroilor, Nr. 25, Ap. 15 (et. 1), sau telefonic.

Arată mai multe

Detalii

  • An construcție : 2008-2011
  • 1 garaj
  • Gresie
  • Centrală proprie

Caracteristici

  • Aer condiționat

Laurentiu Daniel Flamind 0771718238
12.11.2025

Distribuie